SERRAMENTI IN ALLUMINIO
SERRAMENTI IN ALLUMINIO
a partire da €470,00/mq*


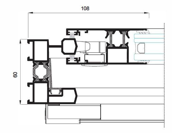
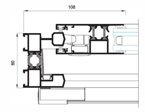
SISTEM COR-60 CON BT
COEFFICIENTE DI SCAMBIO TERMICO
Uw da 1,0 (W/m2K)
Consulta la tipologia, le dimensioni e il vetro
ISOLAMENTO ACUSTICO
Spazio massimo per vetri: 45 mm. isolamento acustico massimo Rw=48 dB
FINITURE
Opzione bicolore
Verniciatura colori (RAL, variegato e goffrato) Verniciatura effetto legno Vernice antibatterica ANODIZZATO
CATEGORIA FATTA SUL BANCO DI PROVA
Permeabilità all’aria
(EN 12207:2000):classe 4
Tenuta all’acqua
(EN 12208:2000): classe E 1200
Resistenza al vento
(EN 12210:2000): classe C5
Test di riferimento 1,20 x 1, 16 M. 2 fogli
Possibilità di utilizzare bacchette con l’estetica a taglio vivo o bombato. Presenta la possibilità di incorporare ferramenta con cerniere nascoste. Possibilità di incorporare la ferramenta di sicurezza Evo Security
SISTEMA INDUSTRIALE COR-70 CON
COEFFICENTE DI SCAMBIO TERMICO
Uw da 0,8 (W/m2K)
Consulta la tipologia, le dimensioni e il vetro
ISOLAMENTO ACUSTICO
Spazio massimo per vetri: 55 mm. isolamento acustico massimo Rw=44 dB
FINITURE
Opzione bicolore
Verniciatura colori (RAL, variegato e goffrato)
Verniciatura effetto legno
Vernice antibatterica ANODIZZATO
CATEGORIE FATTE SUL BANCO DI PROVA
Permeabilità all’aria
(EN 12207:2000): classe 4
Tenuta all’acqua
(EN 12208:2000): classe E 1200
Resistenza al vento
(EN 12210:2000):classe C5
Test di riferimento 1,23 x 1,48 m 2 fogli
Resistenza al furto con scasso
(EN 1627:2011): Grado Re2 (Wk2)
Test di riferimento 2,52 x 1,47 M. 1 foglio con raccordi EVO SECURITY



COR-80 SISTEMA INDUSTRIALE CON BT
TRASMITTANZA
Uw da 0,8 (W/m2K)
Consulta la tipologia, le dimensioni e il vetro
MASSIMO ISOLAMENTO ACUSTICO
CATEGORIE FATTE SUL BANCO DI PROVA
Permeabilità all’aria
(UNE-EN 12207:2000): classe 4
Tenuta all’acqua
(UNE-EN 12208:2000): classe E 1950
SISTEMA COR 4600 SCORREVOLE
CON ALZATA HI CON BT
TRASMITTANZA
Uw da 0,9 (W/m2K)
Consulta la tipologia, le dimensioni e il vetro
MASSIMO ISOLAMENTO ACUSTICO
Rw=43 dB
FINITURE
Possibilità di verniciatura
Anodizzazione a due colori
CATEGORIE FATTE SUL BANCO DI PROVA
Permeabilità all’aria
(EN 12207:2000): classe 4
Tenuta all’acqua
(EN 12208:2000): classe E 1200
Resistenza al vento
(EN 12210:2000):classe C5
Test di riferimento 1,23 x 1,48 m 2 fogli


SISTEMA 4200 SCORREVOLE CON BTTRASMITTANZA
Uw da 1,5 (W/m2K)
Consulta la tipologia, le dimensioni e il vetro
ISOLAMENTO ACUSTICO
Spazio massimo per vetri: 26 mm.
isolamento acustico massimo Rw=39 dBA
FINITURE
Opzione bicolore
Colori della vernice (RAL,variegato e testurizzato) Verniciatura effetto legno
Vernice antibatterica , anodizzazione
CATEGORIA FATTA SUL BANCO DI PROVA
Permeabilità all’aria
(EN 12207:2000): classe 3
Tenuta all’acqua
(EN 12208:2000): classe 7
Resistenza al vento
(EN 12210:2000): classe C5
Test di riferimento 1,20 x 1, 16 M. 2 fogli
Tutti i servizi di cui hai bisogno per i tuoi nuovi serramenti
Servizio completo
Seguiamo il cliente nella scelta, forniamo il prodotto più adatto alle sue esigenze ed eseguiamo anche la posa
Prezzo Offerta Lancio
Ordina subito! Promozione valida per ordini effettuati entro il 31/12/2023
Tempi di consegna
Consegna entro 45 gg. dalla data della conferma d'ordine.
(Per prodotti fuori standard consegna da stabilire a preventivo)
*Prezzo promozionale indicativo per fornitura Sistem Cor-60 con BT. Le quotazioni vengono preventivate gratuitamente per ogni singolo infisso in base al prodotto scelto, alle misure e conformazioni dei serramenti, al colore ed alla tipologia di vetro.








